
Här kan du läsa hur hela bygglovsprocessen ser ut, från det att du tar reda på om du behöver ansöka om bygglov för det du vill bygga, till att du fått ett slutbesked.
Att bygga en ny byggnad eller göra en tillbyggnad kräver oftast bygglov. Attefallsåtgärder eller installation av eldstad kräver ingen bygglov men kräver en anmälan. En friggebod behöver varken bygglov eller anmälan om du inte redan har utnyttjat den möjligheten.
Ändrad användning
Om du ska använda en byggnad på ett nytt sätt behöver du söka bygglov, även om du inte ska bygga om något i byggnaden. Du behöver bygglov även om du bara ska använda en del av byggnaden på nytt sätt. Förändringen måste vara väsentlig, till exempel från garage till lager, från garage till bostad, från bostad till kontor, från fabrik till butik.
Annat än byggnader
Du behöver också bygglov för till exempel murar och plank, permanent uppställning av bilar och uppläggning av båtar eller containrar som ska stå kvar en längre period.
Om området har en detaljplan så behöver du också bygglov för större ljusanordningar och för att sätta upp eller ändra en skylt.
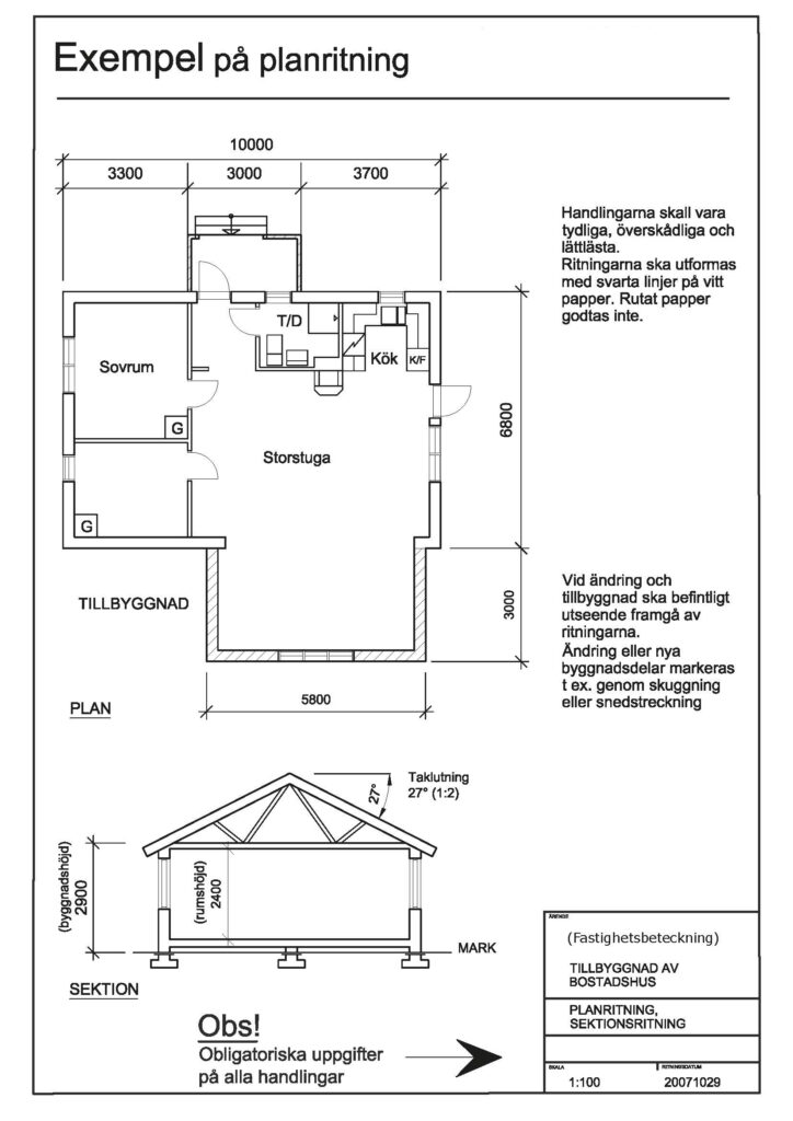
Handlingar som behövs vid bygglovsansökan
Ansökan ska vara skriftlig och innehålla de uppgifter, ritningar och andra handlingar som kommunen behöver för att kunna handlägga ansökan och fatta beslut. För att du ska kunna få ett beslut snabbt är det viktigt att handlingarna är korrekta och tydliga.
1) Fasadritningar (skala 1:100) – Byggnadens fasad ska redovisas.
- Befintlig och blivande mark
- Väderstreck för aktuell fasad

2) Planritning (skala 1:100) – Du ska redovisa alla våningsplan, även källare och loft
- Redovisa alla yttremått, både befintliga och tillkommande delar
- Redovisa rumsfunktioner med fast indredning och möbleringens förslag för alla våningsplan
- Sektionsmarkering

3) Sektionsritning (skala 1:100) –
- Byggnadshöjd
- Nockhöjd
- Rumshöjd
- Taklutning

4) Situationsplan (skala 1:500) – En situationsplan får vara högst 5 år gammal.
- Alla byggnader ska vara redovisade
- Den nya byggnationens placering och mått ska vara tydligt utsatta
- Föreslagen färdigt golvhöjd
- Vid tillbyggnaden är det viktigt att du markerar de nya byggnadsdelarna tydligt.
- Strandskyddslinje
- mått till närmaste byggnad och fastighetsgräns

5) Riskbedömning –
I alla byggen, från en liten stuga till ett stor köpcentrum, ska en riskbedömning skickas in till byggnadsnämnden. När man tar fram ett förslag till kontrollplan ska man utgå från vilka misslyckanden som kan tänkas uppkomma under byggtiden. Det innebär du som byggherre och organisation måste se till omständigheterna i det enskilda fallet och utifrån dessa göra en riskbedömning. När du har bedömt alla risker som kan uppkomma är det lättare att ta fram kontrollpunkter och kontrollplan.
Stödmaterial för kontrollplan till byggherre
6) Kontrollplan & anmälan om kontrollansvarig –
En kontrollplan är en plan för kontrollen av en bygg- eller rivningsåtgärd, ofta utformad som en slags checklista. I den ska bland annat anges vilka kontroller som ska göras, vad kontrollerna ska avse och vem som ska göra kontrollerna. Uppgifter om den kontrollansvarige behövs redan i lovansökan eftersom byggnadsnämnden är skyldig att besluta vem som ska vara kontrollansvarig när de beslutar om lovet.
Här kan du söka en kontrollansvarig hos RISE
Här kan du söka en kontrollansvarig hos Ciwa
7) Brandskyddsbeskrivning
Brandskyddsbeskrivning behövs i alla nya byggnader förutom komplementbyggnader under 15 m2. Omfattningen av brandbeskrivningen kan vara varierande beroende på storleken av byggnationen.
8) Energiberäkningar
När man ska bygga en ny byggnation måste man följa bland annat Boverkets Byggregler (BBR). En av dessa krav är att en energiberäkning måste upprättas. I en energiberäkning ska alla de energitekniska egenskaper som byggnaden har och vad som påverkar byggnadens energianvändning tas med. Det kan vara till exempel byggnadens värmetröghet, klimatskärmens värmeisolering eller interna energitillskott från belysning och personvärme. Energiberäkningar ska uppfylla kravet på byggnadens primärenergital enligt BBR
Tänk på att: Kontrollera att alla handlingar finns med innan du lämnar in ansökan om lov. Om din ansökan är komplett när den kommer in till oss, går det snabbare för dig att få beslut om bygglov.
Så snart som möjligt efter det att din ansökan kommit in till Miljö- och byggnadsenheten ska vi göra en första granskning av ärendet. Vi kontrollerar då om åtgärden verkligen kräver bygglov. Vid den första granskningen kontrolleras också om ansökan är komplett, det vill säga om alla nödvändiga handlingar finns med. Även ritningarnas kvalitet och tydlighet bedöms.
Om ansökan är ofullständig får Miljö- och byggnadsenheten förelägga dig som sökande att inom en viss tid komplettera ansökan med det som saknas. Att en ansökan är ofullständig kan innebära att den helt saknar någon uppgift eller ritning som krävs för prövningen. Men det kan också vara så att ritningarna inte är utförliga nog eller av tillräckligt bra kvalitet.
När din ansökan är inlämnad till Miljö- och byggnadsenheten ska nämnden skicka skriftlig information till dig så snart som möjligt. Den skriftliga informationen ska innehålla information om bland annat hur lång tid det får ta innan beslut tas, att den avgift nämnden får ta ut reduceras om tidsfristen för beslut överskrids samt möjligheten till att överklaga beslutet.
Det är hos Miljö- och byggnadsenheten som man ansöker om bygglov, rivningslov, marklov och förhandsbesked. Ansökan ska innehålla de uppgifter, ritningar och andra handlingar som behövs för att ansökan ska kunna handläggas och beslut fattas.
Ett beslut i ärenden om lov eller förhandsbesked ska tas inom 10 veckor om ärendet är komplett. I särskilda fall kan tiden för vår handläggning förlängas en gång med högst tio veckor, totalt 20 veckor.
Om åtgärden uppfyller alla krav kan Miljö- och byggnadsenheten besluta att ge bygglov. Om kraven inte uppfylls så kan vi avslå ansökan om bygglov.
Utskick och kungörelse
Beslutet skickas till dig som har ansökt om lov. Grannar och andra berörda sakägare får en notis via brev om att du har fått ett positiv besked och de har 3 veckor på sig att överklaga tills beslutet har vunnit laga kraft.
När byggnadsnämnden har beslutat om lov eller tagit emot din ansökan ska de snarast kalla till ett tekniskt samråd. Vid samrådet går ni gemensamt igenom redovisningen av arbetets organisation och förslag till kontrollplan. Om byggnadsnämnden känner till att projektet kräver tillstånd av någon annan myndighet ska de upplysa dig om det. Byggnadsnämnden för protokoll under hela samrådet.
Normalt krävs inte tekniskt samråd om du uppför Attefallshus, en tillbyggnad på högst 15 kvadratmeter eller inreder ytterligare en bostad i ett enbostadshus men byggnadsnämnden kan besluta att det behövs.
Miljö- och byggnadsnämnden ska snarast, när ett lov har getts eller en anmälan har kommit in, kalla till ett tekniskt samråd om:
- åtgärden kräver en kontrollansvarig,
- ett tekniskt samråd inte är uppenbart onödigt, eller
- byggherren har begärt ett tekniskt samråd.
Vid samrådet ska följande gås igenom:
- Arbetets planering och organisation.
- Byggherrens förslag till kontrollplan.
- Övriga handlingar som byggherren har lämnat in till byggnadsnämnden
- Hur identifieringen av avfall och återanvändbara byggprodukter har gjorts.
- Behovet av att byggnadsnämnden gör arbetsplatsbesök.
- Behovet av tillsynsåtgärder.
- Behovet av färdigställandeskydd.
- Behovet av utstakning.
- Behovet av ytterligare handlingar inför beslut om kontrollplan eller startbesked.
- Behovet av ytterligare tekniska samråd eller andra sammanträden.
Du måste ha fått ett startbesked från byggnadsnämnden innan du får påbörja en åtgärd som kräver bygglov, rivningslov, marklov eller anmälan. I startbeskedet fastställer byggnadsnämnden kontrollplanen. Byggnadsnämnden kan till exempel anse att byggherrens egenkontroll inte är tillräckliga utan behöver kompletteras med en certifierad sakkunnig. Ett startbesked för lovpliktiga åtgärder upphör att gälla samma dag som beslutet om lov upphör att gälla.
Tänk på att: Ett bygglov upphör att gälla om åtgärden inte påbörjas inom 2 år
Medan byggnaden byggs görs avstämningar med kommunen i enlighet med den kontrollplan som beslutades i startbeskedet. Den kontrollansvarige som du har anlitat ska övervaka byggprocessen och säkerställa att den följer bestämmelserna i bygglagstiftningen. Normalt sett bör kommunen även, åtminstone en gång under byggprocessen, besöka arbetsplatsen. Detta sker när det har hållits ett tekniskt samråd där beslutet togs att genomföra arbetsplatsbesök.
När byggnaden är färdigbyggd informerar du Miljö- och byggnadsenheten så att de kan kalla till ett slutsamråd. Slutsamrådet kan ses som en revision av handlingar, genomgång av hur kontrollplanen har följts, lyssna på vad kontrollansvarig har att säga och gå igenom dokumentation från till exempel genomförda arbetsplatsbesök. Eventuella ställda villkor från startbeskedet följs, liksom villkoren i bygglovet. Detta är alltså en avstämning mellan byggherren, kontrollansvarig, byggföretaget, andra berörda och kommunen. När eventuella fel och brister har rättats till kan byggherren begära ett slutbesked
När alla krav är uppfyllda och nämnden inte har funnit någon anledning att ingripa, ska byggnadsnämnden ge dig ett slutbesked. De åtgärder som du har angett i bygglovet eller anmälan ska vara slutförda när slutbeskedet utfärdas.
Tänk på att: Du får inte ta i bruk en byggnad (till exempel flytta in i den) eller en annan anläggning innan du har fått ett slutbesked.
Det är möjligt att få ett slutbesked även om mindre brister finns kvar. Byggnadsnämnden kommer i så fall att notera dessa brister, som du måste åtgärda senare. Om det handlar om större brister kan ett tillfälligt slutbesked ges till dig, även känt som ett interimistiskt slutbesked, som gäller fram till dess att du har åtgärdat bristerna eller genomfört nödvändiga kontroller. När bristerna har åtgärdats eller kontrollen är genomförd, kommer byggnadsnämnden att definitivt pröva frågan om slutbesked.
Sidan publicerades första gången: 2024-02-07 09:24
Sidan uppdaterades senast: 2025-12-01 10:10



